3,5-Zi.-ETW im Erdgeschoss mit herrlicher Fernsicht
185.000 €
Kaufpreis3,50
Zimmer83 m²
Wohnflächesofort
Verfügbar abAdresse
75335 Dobel
Preise & Kosten
Angaben zur Immobilie
EnergieausweisD
112 kWh / (a·m²)
Lage
Im Herzen der fast endlosen Wälder des Nordschwarzwaldes liegt der Höhenkurort Dobel.
Der kleine Ort mit knapp 2300 Einwohnern, einem umso größeren Maße an Gastfreundschaft und wahrlich gesunder Heilklima-Luft, bietet nicht nur Kur- und Urlaubsgästen die pure Erholung, sondern auch seinen Einwohnern die Möglichkeit ein ausgeglichenes Wohn- und Lebensgefühl zu erlangen. Wohnen, wo Andere Urlaub machen!
Kleinere Geschäfte und ein Supermarkt für den täglichen Bedarf sind in Dobel vorhanden, größere Einkaufszentren wie Edeka, Aldi und dm sind im nahe gelegenen Ort Conweiler oder im benachbarten Bad Herrenalb vorhanden. Für die Bildung des Nachwuchs´ stehen ein Kindergarten und eine Grundschule direkt im Ort zur Verfügung.
Die hier angebotene Wohnung befindet sich ruhig gelegen in einer Sackgasse unweit vom Ortskern Dobel entfernt.
Objektbeschreibung
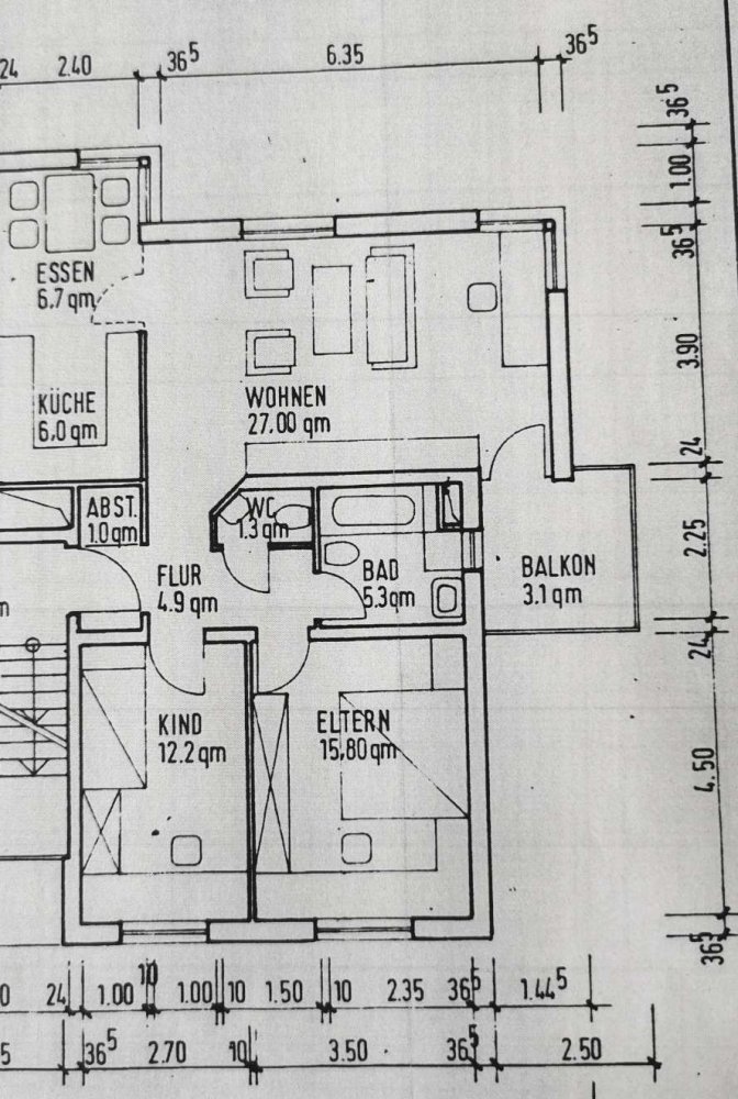
Bei der hier angebotenen Wohnung handelt es sich um eine 3,5-Zimmer-ETW, mit 83 qm Wohnfläche im erhöhten Erdgeschoß einer kleinen Wohnanlage, bestehend aus 5 Parteien.
Zu der ETW gehören noch ein separater Keller und ein Außenstellplatz.
Gemeinschaftlich wird der Wasch- und Trockenraum genutzt, sowie ein zusätzlicher großer Kellerraum.
Die Wohnanlage wird von einer Hausverwaltung geführt und ein Hausmeisterservice kümmert sich um die Pflege des Objektes.
Sonstiges
Alle Angaben in diesem Exposé beruhen auf Informationen des Eigentümers. Die Firma SE Immobilien-Management GmbH übernimmt keine Haftung für die Vollständigkeit und Richtigkeit dieser Angaben.
Bei näherem Interesse zu diesem Objekt bitten wir Sie, uns ein vollständig ausgefülltes Kontaktformular zukommen zu lassen.
Gerne stellen wir Ihnen weitere Unterlagen zur Verfügung oder vereinbaren mit Ihnen einen Besichtigungstermin.
Ausstattung
- herrliche Aussicht auf unverbaubare Wiesen und Wälder
- Balkon mit Blick ins Grüne
- teiloffener Wohn-/Esszimmerbereich
- Einbauküche mit diversen Elektrogeräten und eigebautem TV
- neue Laminatböden in Wohn- und Esszimmerbereich, sowie im Flur
- Fliesenböden in Bad und Gäste-WC
- alles neu gestrichen
- Holzfenster mit Isolierverglasung
- Öl-Zentralheizung
- Tageslichtbad mit Badewanne, WC und Waschbecken
- Waschmaschinenanschluß auch im Bad vorhanden
- sep. Gäste-WC
- praktischer Abstellraum mit Regalen
- ein PKW-Stellplatz und ein Kellerraum
- Wasch- und Trockenraum
- Hausmeisterservice
- sofort verfügbar
- Energieverbrauch: 112 kWh/qm*p.a.
Kontaktanfrage an Nina Hammann-Elkins
Ansprechpartner
Nina Hammann-Elkins
Anbieter
SE Immobilien - Management GmbH
Anbieter Impressum - SE Immobilien - Management GmbH
Angaben gemäß §5 TMG:SE Immobilien - Management GmbH
Karlsruher Str. 87a
75179 Pforzheim
Kontakt:Telefon: 07231 / 58 50 6 - 0
Telefax: 07231 / 58 50 6 - 50
E-Mail: info@se-im.de
Registereintrag:Eintragung im Handelsregister.
Registergericht: Amtsgericht Mannheim
Registernummer: HRB 504 860
Vertreten durch:SE Immobilien - Management GmbH
Geschäftsführer: Siegmund Steding
Prokuristen: René Steding, Nicole Steding und Sabrina Vogel
Rechtsform: GmbH
Berufsaufsichtsbehörde: Industrie- und Handelskammer Nordschwarzwald
Umsatzsteuer:Umsatzsteuer- Identifikationsnummer gemäß §27 a Umsatzsteuergesetz:
DE210169048
Gewerbeerlaubnis:nach § 34 c Gew. O. durch das Landratsamt Enzkreis erteilt
Verbraucherinformationen
Online-Streitbeilegung gemäß Art.14 Abs.1 ODR-VO: Die Europäische Kommission stellt eine Plattform zur Online-Streitbeilegung (OS) bereit, die Sie hier finden: ec.europa.eu/consumers/odr
Nina Hammann-Elkins
SE Immobilien - Management GmbH
SE Immobilien
Management GmbH
Über uns