Große Maisonette Wohnung im Dachgeschoss mit Aufzug und Balkon
299.000 €
Kaufpreis5,50
Zimmer140 m²
Wohnflächenach Absprache
Verfügbar abAdresse
75177 Pforzheim
Preise & Kosten
Angaben zur Immobilie
EnergieausweisD
125 kWh / (a·m²)
Lage
Die Stadt Pforzheim ist eine Großstadt in Baden-Württemberg und befindet sich am nordwestlichen Rand des Schwarzwalds. Sie liegt etwa 20 Kilometer südöstlich von Karlsruhe und etwa 40 Kilometer nordwestlich von Stuttgart. Die Stadt ist über die Autobahn A8 und die Bundesstraßen B10 und B294 gut zu erreichen.
Die nächste Haltestelle des öffentlichen Nahverkehrs ist nur 2 Gehminuten von der Immobilie entfernt. Von dort aus gelangt man schnell und bequem in alle Teile der Stadt. Der Hauptbahnhof ist ebenfalls nur 2 Fahrminuten entfernt und bietet Anschluss an das regionale und überregionale Schienennetz.
Der nächstgelegene Flughafen ist der Flughafen Stuttgart, der etwa 35 Fahrminuten von der Immobilie entfernt ist. Von dort aus gibt es zahlreiche nationale und internationale Verbindungen.
Objektbeschreibung
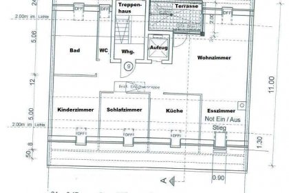
In zentraler Lage von Pforzheim befindet sich diese großzügige 5,5-Zimmer-Etagenwohnung im 5. Obergeschoss eines gepflegten Mehrfamilienhauses. Die Wohnung verfügt über eine Gesamtwohnfläche von ca. 140 m² und ist aufgeteilt in 5 Schlafzimmer, ein Badezimmer, ein Gäste-WC, eine Einbauküche und einen geräumigen Wohn- und Essbereich. Der Bodenbelag besteht aus Fliesen und Laminat. Ein Aufzug ist vorhanden und bringt Sie bequem in die 5. Etage. Zur Wohnung gehört ein Keller. Die Wohnung ist derzeit vermietet und eignet sich daher ideal als Kapitalanlage. Das monatliche Hausgeld beträgt 280 €. Die letzte Modernisierung fand im Jahr 2012 statt, die Heizung wurde 2022 erneuert, es handelt sich um eine Gas Etagenheizung. Überzeugen Sie sich selbst von dieser attraktiven Immobilie in Pforzheim und vereinbaren Sie noch heute einen Besichtigungstermin.
Sonstiges
Die Angaben beruhen auf Aussagen der Eigentümer bzw. Dritter, hierfür übernimmt der Makler sowie die SE Immobilien-Management GmbH keinerlei Haftung.
Für Ihre Finanzierung stehen wir Ihnen ebenfalls gerne mit Top Konditionen zur Verfügung, d.h. alles aus einer Hand, völlig unproblematisch, sprechen Sie uns diesbezüglich an !
Ausstattung
* geräumiges Wohn- Esszimmer
* Dachterrasse
* moderne Einbauküche
* Schlafzimmer
* Kinderzimmer oder Gästezimmer
* Tageslichtbad mit Dusche, Eckbadewanne, Doppelwaschtisch, WC, BD und el. Fußbodenheizung
* Gäste WC
* Aufzug bis in die Wohnung
* Diele
* Aufgang zum oberen DG
* Kellerabteil
Kontaktanfrage an Mike Kunkel
Ansprechpartner
Mike Kunkel
Anbieter
SE Immobilien - Management GmbH
Anbieter Impressum - SE Immobilien - Management GmbH
Angaben gemäß §5 TMG:SE Immobilien - Management GmbH
Karlsruher Str. 87a
75179 Pforzheim
Kontakt:Telefon: 07231 / 58 50 6 - 0
Telefax: 07231 / 58 50 6 - 50
E-Mail: info@se-im.de
Registereintrag:Eintragung im Handelsregister.
Registergericht: Amtsgericht Mannheim
Registernummer: HRB 504 860
Vertreten durch:SE Immobilien - Management GmbH
Geschäftsführer: Siegmund Steding
Prokuristen: René Steding, Nicole Steding und Sabrina Vogel
Rechtsform: GmbH
Berufsaufsichtsbehörde: Industrie- und Handelskammer Nordschwarzwald
Umsatzsteuer:Umsatzsteuer- Identifikationsnummer gemäß §27 a Umsatzsteuergesetz:
DE210169048
Gewerbeerlaubnis:nach § 34 c Gew. O. durch das Landratsamt Enzkreis erteilt
Verbraucherinformationen
Online-Streitbeilegung gemäß Art.14 Abs.1 ODR-VO: Die Europäische Kommission stellt eine Plattform zur Online-Streitbeilegung (OS) bereit, die Sie hier finden: ec.europa.eu/consumers/odr
Mike Kunkel
SE Immobilien - Management GmbH
SE Immobilien
Management GmbH
Über uns