Mo - Fr 08:00 bis 17:00 Uhr
Mo - Fr 08:00 bis 17:00 Uhr
329.000 €
Kaufpreis3
Zimmer127 m²
Wohnflächesofort
Verfügbar ab75339 Höfen an der Enz
Die hier beschriebene Wohnung befindet sich in ruhiger Lage von Höfen an der Enz.
Höfen zählt mit seinen ca. 1.800 Einwohnern zu den kleineren Gemeinden im Enzkreis und liegt eingebettet im Tal zwischen den nächstgrößeren Ortschaften Neuenbürg und Bad Wildbad.
Durch den Ort verläuft die Bundesstraße 294, die von Bretten über Pforzheim bis nach Freiburg runter führt. Der nächste Autobahnanschluss befindet sich an der Auffahrt Pforzheim-West, ca. 17km entfernt. Höfen ist aber auch mit den öffentlichen Verkehrsmitteln gut zu erreichen; so verkehrt die Stadtbahn in regelmäßigen Abständen zwischen Karlsruhe und Bad Wildbad bis hin nach Pforzheim und Bietigheim-Bissingen.
Für den Nachwuchs ist ebenfalls bestens gesorgt: in Höfen gibt es beispielsweise einen Kindergarten, der selbst die Kleinsten schon betreut und auch eine Grundschule ist ortsansässig. Weiterführende Schulen befinden sich in den umliegenden Ortschaften.
Zahlreiche Vereine, Veranstaltungen und Wanderwege tragen zu einem aktiven Leben in Höfen bei.
Eine kleine Gemeinde mit viel Herz in reizvoller Natur - hier heißt man Sie herzlich Willkommen.
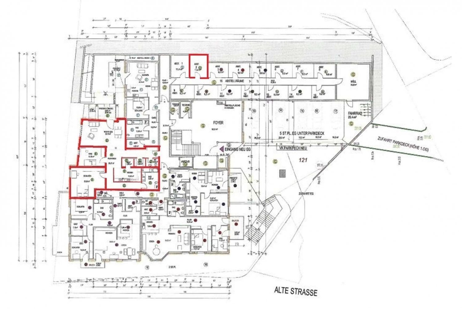
Die hier angebotene Eigentumswohnung befindet sich im Erdgeschoss einer mittelgroßen Wohnanlage, bestehend aus 16 Wohneinheiten.
Hier wurde eine ältere Bestandsimmobilie aus dem Jahr 1985 grundlegend neu aufgebaut und im Jahr 2021 einer Kernsanierung, einschließlich baulicher Erweiterungen unterzogen.
In der gesamten Wohnanlage vereinen sich modernste Technik mit höchstem Wohnkomfort und Sie erhalten eine neuwertige Wohnung - mit vielen Extras und für die Zukunft gestaltet: So sind beispielsweise alle Räumlichkeiten im Haus und auch in der Wohnung selbst vollkommen barrierefrei erreichbar.
Mit ca. 127 m² Wohnfläche bietet die Wohnung viel Platz für die ganze Familie. Die moderne offene Wohnküche lädt zum gemeinsamen kochen und backen ein und sollte übernommen werden.
Die einzelnen Zimmer sind geräumig und bieten ausreichend Platz um sich auch mal zurück zu ziehen. Die zur Wohnung gehörende und teilüberdachte Terrasse bietet selbst bei kleineren Regenschauern noch genug Freisitz-Möglichkeiten.
Räumliche Aufteilung:
* Flur / Diele......................26,07 m²
* Wohnen / Essen...........32,79 m²
* Kind.................................13,79 m²
* Schlafen.........................25,59 m²
* Küche.............................10,49 m²
* Badezimmer................... 9,88 m²
* Abstellraum.................... 2,64 m²
* Garderobe...................... 2,59 m²
* WC................................... 2,86 m²
* Freisitz............................11,18 m²
Zusätzlich sind zwei Kellerräume, eine Garage und ein Außenstellplatz der Wohnung zugeordnet und im Angebot inkludiert.
Im Gemeinschaftseigentum stehen ein Waschraum, überdachte Fahrrad-Abstellplätze, E-Ladestationen und sogar ein hauseigener Kinderspielplatz zur Verfügung.
Haben wir Ihr Interesse geweckt? Dann treten Sie ein in eine solide Eigentümergemeinschaft und genießen Sie alle Vorzüge modernen Wohnens.
Die Angaben zum Objekt beruhen auf Angaben der Verkäufer bzw. Dritter, der Makler sowie die SE Immobilien-Management GmbH übernimmt hierfür keine Haftung. Bitte beachten Sie außerdem den Hinweis auf das aktuell geltende Gesetz zur Provisionsvereinbarung.
* 3-Zi.-ETW mit teil-überdachter Terrasse im Erdgeschoss
* Kernsanierung 2021, 16 Wohneinheiten, barrierefrei
* Fassade mit WDVS gedämmt
* Trennwände 24cm stark, Schallschutztechnik
* eigenes Blockheizkraftwerk plus Gas-Zentralheizung
* Fußbodenheizung in der ganzen Wohnung
* Spanndecken mit integrierte Beleuchtung
* isolierverglaste Fenster von 2021, elektrische Rollläden
* offener Wohn- und Essbereich mit Zugang zur Küche
* neue Einbauküche mit hochwertigen Siemens Geräten - Ablösebetrag: verhandelbar
* zwei großzügig gestaltete Schlafzimmer
* Badezimmer mit Badewanne, Dusche, Waschtisch und WC sowie Waschmaschinenanschluss und Handtuchheizkörper
* Gäste-WC vorhanden
* Abstellraum in der Wohnung vorhanden
* Kellerraum zusätzlich zugewiesen
* Außenstellplatz
* Garage mit el. Tor
* Fahrradabstellplatz (Gemeinschaftseigentum)
* Waschraum (Gemeinschaftseigentum)
* Hausverwaltung und Hausmeisterservice
* u.v.m.
Ansprechpartner
Anbieter
Angaben gemäß §5 TMG:SE Immobilien - Management GmbH
Karlsruher Str. 87a
75179 Pforzheim
Kontakt:Telefon: 07231 / 58 50 6 - 0
Telefax: 07231 / 58 50 6 - 50
E-Mail: info@se-im.de
Registereintrag:Eintragung im Handelsregister.
Registergericht: Amtsgericht Mannheim
Registernummer: HRB 504 860
Vertreten durch:SE Immobilien - Management GmbH
Geschäftsführer: Siegmund Steding
Prokuristen: René Steding, Nicole Steding und Sabrina Vogel
Rechtsform: GmbH
Berufsaufsichtsbehörde: Industrie- und Handelskammer Nordschwarzwald
Umsatzsteuer:Umsatzsteuer- Identifikationsnummer gemäß §27 a Umsatzsteuergesetz:
DE210169048
Gewerbeerlaubnis:nach § 34 c Gew. O. durch das Landratsamt Enzkreis erteilt
Verbraucherinformationen
Online-Streitbeilegung gemäß Art.14 Abs.1 ODR-VO: Die Europäische Kommission stellt eine Plattform zur Online-Streitbeilegung (OS) bereit, die Sie hier finden: ec.europa.eu/consumers/odr
SE Immobilien
Management GmbH
Über uns