Wohnung, Kauf, Oberderdingen-Flehingen
SE Immobilien Management GmbH
Sanierungsbedürftige 4-Zimmer Wohnung -             Start frei für ihr Projekt!

Sanierungsbedürftige 4-Zimmer Wohnung - Start frei für ihr Projekt!

Objektbeschreibung

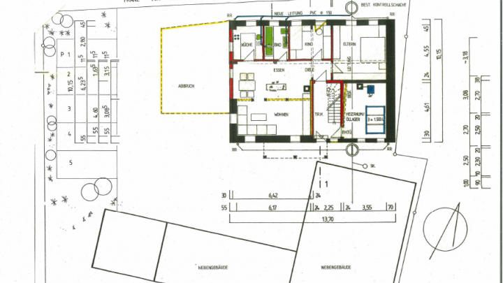
Zum Verkauf steht eine großzügige Erdgeschosswohnung mit einer Wohnfläche von 92,32 m², die sich ideal für Familien oder Paare eignet. Die Wohnung verfügt über insgesamt 4 Zimmer, Küche, Badezimmer, separater Abstellkammer, sowie einen zentralen Flur und bietet viel Raum für individuelle Gestaltungideen und Nutzungsmöglichkeiten.



Die Wohnung befindet sich in einem Mehrfamilienhaus mit 3 Etagen und wurde zuletzt im Jahr 1990 modernisiert. Sie ist sanierungsbedürftig und bietet somit die perfekte Gelegenheit, Ihre individuellen Wohnträume zu verwirklichen. Die Ausstattung ist einfach gehalten, was Ihnen die Möglichkeit gibt, die Wohnung nach Ihren eigenen Vorstellungen zu gestalten.



Der Bodenbelag besteht aus Fliesen und Laminat. Beheizt wird die Wohnung aktuell mit Hilfe von Nachspeicheröfen.

Zur Wohnung gehören zusätzlich, ein eigener Garten und ein Gartenanteil der gemeinschaftlich genutzt werden kann, ein Abstellraum im Nebengebäude und ein Stellplatz direkt am Haus angebunden, was Ihnen sicheres Parken und bequemes Ein-und Ausladen verspricht.



Die Wohnung befindet sich weitgehend im Originalzustand und erfordert daher eine umfassende Sanierung in nahezu allen Bereichen: Elektrik, Sanitär, Bodenbeläge, Wände und gegebenenfalls Fenster sowie Heizung.



Aktuell steht die Wohnung leer, wodurch sich die Möglichkeit bietet, unverzüglich mit den geplanten Sanierungsmaßnahmen zu beginnen.



Nutzen Sie die Chance, diese sanierungsbedürftige Erdgeschosswohnung zu einem attraktiven Preis zu erwerben und gestalten Sie Ihr neues Zuhause ganz nach Ihren Wünschen!



Für weitere Informationen oder zur Vereinbarung eines Besichtigungstermins stehen wir Ihnen gerne zur Verfügung.

Lage

Die Wohnung in der charmanten Gemeinde Oberderdingen-Flehingen bietet Ihnen eine hervorragende Anbindung an den öffentlichen Nahverkehr, da der nächste ÖPNV-Haltepunkt nur 596 Meter entfernt ist.

So gelangen Sie bequem und schnell zu Ihren Zielen.



Die Fahrzeit zum nächstgelegenen Hauptbahnhof beträgt lediglich 2 Minuten, was Ihnen eine optimale Erreichbarkeit überregionale Verbindungen ermöglicht. Für Reisende ist auch die Nähe zum Flughafen von Bedeutung; dieser ist in nur 34 Minuten erreichbar, was Ihnen eine unkomplizierte Anreise zu nationalen und internationalen Destinationen bietet.



Genießen Sie die ruhige, naturnahe Umgebung von Oberderdingen-Flehingen, während Sie gleichzeitig von den Vorteilen einer guten Verkehrsanbindung profitieren. Diese Lage kombiniert ländlichen Charme mit urbaner Erreichbarkeit – ein idealer Ort, um Ihr neues Zuhause zu finden!

Sonstiges

Die Angaben zum Objekt beruhen auf Auskünften des Eigentümers bzw Dritter, hierfür übernimmt der Makler sowie die SE Immobilien-Management GmbH keinerlei Haftung.

99.000 €

Kaufpreis

4

Zimmer

92,32 m²

Wohnfläche

nach Vereinbarung

Verfügbar ab

Adresse

75038 Oberderdingen-Flehingen

Preise & Kosten

Kaufpreis
99.000 €
Käufercourtage
3,57 % inkl. 19% MwSt
Courtage
Die Käuferprovision beträgt 3,57 % inkl. 19 % MwSt., verdient und fällig mit Beurkundung des notariellen Kaufvertrages. Der Immobilienmakler hat einen provisionspflichtigen Maklervertrag mit dem Verkäufer in selber Höhe abgeschlossen.

Angaben zur Immobilie

Objektart
Erdgeschoss
Zimmer
4
Schlafzimmer
2
Badezimmer
1
Wohnfläche
92,32 m²
Verfügbar ab
nach Vereinbarung

Ausstattung

Stellplatzart
Freiplatz
Bad
Wanne
Boden
Fliesen, Laminat
Befeuerung
Elektro
Gartennutzung
Abstellraum

4 Zimmer im Erdgeschoss

Außenstellplatz (Sondernutzungsrecht)

Abstellraum im Nebengebäude

großer Garten

Nachtspeicheröfen

großer Innenhof

Ansprechpartner

Nina Schäfer

Zentrale07231/5850615
E-MailDiese E-Mail-Adresse ist vor Spambots geschützt! Zur Anzeige muss JavaScript eingeschaltet sein.

Anbieter

SE Immobilien - Management GmbH

E-MailDiese E-Mail-Adresse ist vor Spambots geschützt! Zur Anzeige muss JavaScript eingeschaltet sein.Anzeigen

Bilder

Sanierungsbedürftige 4-Zimmer Wohnung -             Start frei für ihr Projekt!
Sanierungsbedürftige 4-Zimmer Wohnung -             Start frei für ihr Projekt!
Sanierungsbedürftige 4-Zimmer Wohnung -             Start frei für ihr Projekt!
Sanierungsbedürftige 4-Zimmer Wohnung -             Start frei für ihr Projekt!
Sanierungsbedürftige 4-Zimmer Wohnung -             Start frei für ihr Projekt!
Sanierungsbedürftige 4-Zimmer Wohnung -             Start frei für ihr Projekt!
Sanierungsbedürftige 4-Zimmer Wohnung -             Start frei für ihr Projekt!
Sanierungsbedürftige 4-Zimmer Wohnung -             Start frei für ihr Projekt!
Sanierungsbedürftige 4-Zimmer Wohnung -             Start frei für ihr Projekt!
Sanierungsbedürftige 4-Zimmer Wohnung -             Start frei für ihr Projekt!
Sanierungsbedürftige 4-Zimmer Wohnung -             Start frei für ihr Projekt!