Wohnung, Kauf, Höfen an der Enz
SE Immobilien Management GmbH
***Exclusive Wohneinheit mit Garage und Stellplatz***

***Exclusive Wohneinheit mit Garage und Stellplatz***

Objektbeschreibung

Die hier angebotene Eigentumswohnung befindet sich im Erdgeschoss einer mittelgroßen Wohnanlage, bestehend aus 16 Wohneinheiten.



Hier wurde eine ältere Bestandsimmobilie aus dem Jahr 1985 grundlegend neu aufgebaut und im Jahr 2021 einer Kernsanierung, einschließlich baulicher Erweiterungen unterzogen.



In der gesamten Wohnanlage vereinen sich modernste Technik mit höchstem Wohnkomfort und Sie erhalten eine neuwertige Wohnung - mit vielen Extras und für die Zukunft gestaltet: So sind beispielsweise alle Räumlichkeiten im Haus und auch in der Wohnung selbst vollkommen barrierefrei erreichbar.

Mit ca. 127 m² Wohnfläche bietet die Wohnung viel Platz für die ganze Familie. Die moderne offene Wohnküche lädt zum gemeinsamen kochen und backen ein und sollte übernommen werden. Die einzelnen Zimmer sind geräumig und bieten ausreichend Platz um sich auch mal zurück zu ziehen. Die zur Wohnung gehörende und teilüberdachte Terrasse bietet selbst bei kleineren Regenschauern noch genug Freisitz-Möglichkeiten.



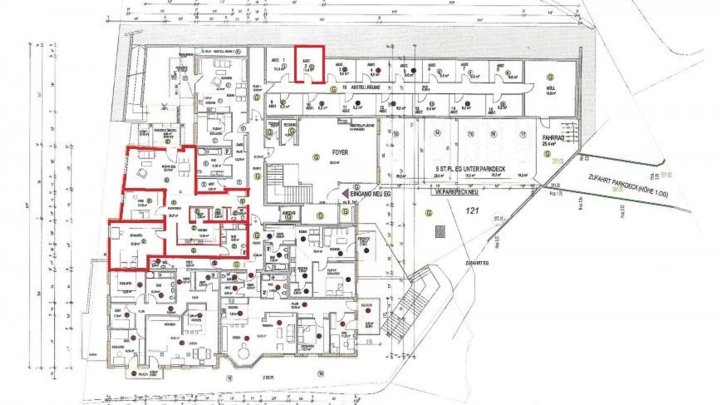
Räumliche Aufteilung:

* Flur / Diele......................26,07 m²

* Wohnen / Essen...........32,79 m²

* Kind.................................13,79 m²

* Schlafen.........................25,59 m²

* Küche.............................10,49 m²

* Badezimmer................... 9,88 m²

* Abstellraum.................... 2,64 m²

* Garderobe...................... 2,59 m²

* WC................................... 2,86 m²

* Freisitz............................11,18 m²



Zusätzlich sind zwei Kellerräume, eine Garage und ein Außenstellplatz der Wohnung zugeordnet und im Angebot inkludiert.



Im Gemeinschaftseigentum stehen ein Waschraum, überdachte Fahrrad-Abstellplätze, E-Ladestationen und sogar ein hauseigener Kinderspielplatz zur Verfügung.



Haben wir Ihr Interesse geweckt? Dann treten Sie ein in eine solide Eigentümergemeinschaft und genießen Sie alle Vorzüge modernen Wohnens.

Lage

Die hier beschriebene Wohnung befindet sich in ruhiger Lage von Höfen an der Enz.



Höfen zählt mit seinen ca. 1.800 Einwohnern zu den kleineren Gemeinden im Enzkreis und liegt eingebettet im Tal zwischen den nächstgrößeren Ortschaften Neuenbürg und Bad Wildbad.



Durch den Ort verläuft die Bundesstraße 294, die von Bretten über Pforzheim bis nach Freiburg runter führt. Der nächste Autobahnanschluss befindet sich an der Auffahrt Pforzheim-West, ca. 17km entfernt. Höfen ist aber auch mit den öffentlichen Verkehrsmitteln gut zu erreichen; so verkehrt die Stadtbahn in regelmäßigen Abständen zwischen Karlsruhe und Bad Wildbad bis hin nach Pforzheim und Bietigheim-Bissingen.



Für den Nachwuchs ist ebenfalls bestens gesorgt: in Höfen gibt es beispielsweise einen Kindergarten, der selbst die Kleinsten schon betreut und auch eine Grundschule ist ortsansässig. Weiterführende Schulen befinden sich in den umliegenden Ortschaften.



Zahlreiche Vereine, Veranstaltungen und Wanderwege tragen zu einem aktiven Leben in Höfen bei.



Eine kleine Gemeinde mit viel Herz in reizvoller Natur - hier heißt man Sie herzlich Willkommen.

Sonstiges

Die Angaben zum Objekt beruhen auf Angaben der Verkäufer bzw. Dritter, der Makler sowie die SE Immobilien-Management GmbH übernimmt hierfür keine Haftung. Bitte beachten Sie außerdem den Hinweis auf das aktuell geltende Gesetz zur Provisionsvereinbarung.

329.000 €

Kaufpreis

3

Zimmer

127 m²

Wohnfläche

August 2026

Verfügbar ab

Adresse

75339 Höfen an der Enz

Preise & Kosten

Kaufpreis
329.000 €
Garagen
2
Käufercourtage
3,57 % inkl. 19% MwSt
Courtage
Die Käuferprovision beträgt 3,57 % inkl. 19 % MwSt., verdient und fällig mit Beurkundung des notariellen Kaufvertrages. Der Immobilienmakler hat einen provisionspflichtigen Maklervertrag mit dem Verkäufer in selber Höhe abgeschlossen.

Angaben zur Immobilie

Objektart
Wohnung
Größe Balkon/Terrasse
45 m²
Zimmer
3
Schlafzimmer
2
Badezimmer
1
Balkone
1
Stellplätze
2
Wohnfläche
127 m²
co2_emissionen
15.3
Objekt ist vermietet
Verfügbar ab
August 2026

EnergieausweisB

0
>250
Endenergiebedarf
50.7 kWh/(a·m²)
Gebäudeart
Wohnimmobilie
Energieausweis
Bedarf
Gültig bis
06.09.2031
Endenergiebedarf
50.7
Ausstelldatum
06.09.2021
Energieeffizenzklasse
B
Primärenergieträger
Erdgas leicht

Ausstattung

Stellplatzart
Garage, Freiplatz
Bad
Dusche, Wanne
Küche
Einbauküche
Boden
Fliesen
Aufzug
Personenaufzug
Differenzierung
Gehoben
Barrierefrei
Abstellraum

* 3-Zi.-ETW mit teil-überdachter Terrasse im Erdgeschoss

* Kernsanierung 2021, 16 Wohneinheiten, barrierefrei

* Fassade mit WDVS gedämmt

* Trennwände 24cm stark, Schallschutztechnik

* eigenes Blockheizkraftwerk plus Gas-Zentralheizung

* Fußbodenheizung in der ganzen Wohnung

* Spanndecken mit integrierte Beleuchtung

* isolierverglaste Fenster von 2021, elektrische Rollläden

* offener Wohn- und Essbereich mit Zugang zur Küche

* neue Einbauküche mit hochwertigen Siemens Geräten - Ablösebetrag: verhandelbar

* zwei großzügig gestaltete Schlafzimmer

* Badezimmer mit Badewanne, Dusche, Waschtisch und WC sowie Waschmaschinenanschluss und Handtuchheizkörper

* Gäste-WC vorhanden

* Abstellraum in der Wohnung vorhanden

* Kellerraum zusätzlich zugewiesen

* Außenstellplatz

* Garage mit el. Tor

* Fahrradabstellplatz (Gemeinschaftseigentum)

* Waschraum (Gemeinschaftseigentum)

* Hausverwaltung und Hausmeisterservice

* u.v.m.

Ansprechpartner

Mike Kunkel

Zentrale+49 7231 58 50 610
E-MailDiese E-Mail-Adresse ist vor Spambots geschützt! Zur Anzeige muss JavaScript eingeschaltet sein.

Anbieter

SE Immobilien - Management GmbH

E-MailDiese E-Mail-Adresse ist vor Spambots geschützt! Zur Anzeige muss JavaScript eingeschaltet sein.Anzeigen

Bilder

***Exclusive Wohneinheit mit Garage und Stellplatz***
***Exclusive Wohneinheit mit Garage und Stellplatz***
***Exclusive Wohneinheit mit Garage und Stellplatz***
***Exclusive Wohneinheit mit Garage und Stellplatz***
***Exclusive Wohneinheit mit Garage und Stellplatz***
***Exclusive Wohneinheit mit Garage und Stellplatz***
***Exclusive Wohneinheit mit Garage und Stellplatz***
***Exclusive Wohneinheit mit Garage und Stellplatz***
***Exclusive Wohneinheit mit Garage und Stellplatz***
***Exclusive Wohneinheit mit Garage und Stellplatz***
***Exclusive Wohneinheit mit Garage und Stellplatz***
***Exclusive Wohneinheit mit Garage und Stellplatz***
***Exclusive Wohneinheit mit Garage und Stellplatz***
***Exclusive Wohneinheit mit Garage und Stellplatz***
***Exclusive Wohneinheit mit Garage und Stellplatz***
***Exclusive Wohneinheit mit Garage und Stellplatz***
***Exclusive Wohneinheit mit Garage und Stellplatz***