Haus, Kauf, Berlin
SE Immobilien Management GmbH
***Sanierungsfall oder Abriss***

***Sanierungsfall oder Abriss***

Objektbeschreibung

***Achtung Sanierung oder Abriss***



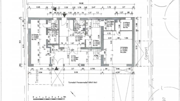
Zum Verkauf steht dieses sanierungsbedürftige Einfamilienhaus mit 5 Zimmern und 3 Schlafzimmern auf einem 671 m² großen Grundstück in Berlin/Köpenick. Die Wohnfläche beträgt ca. 160 m² und bietet somit ausreichend Platz für eine Familie. Das Grundstück verfügt zudem über eine schöne Gartenfläche von ca. 500 m².



Das Haus befindet sich im hinteren Teil eines schönen ruhigen und bevorzugtem Wohngebiet. Es verfügt über eine normale Ausstattung mit Fliesen- und Dielenboden. Zur Immobilie gehören eine Garage, ein Außenstellplatz und ein Carport sowie ein Keller und ein Abstellraum.



Die Immobilie ist ideal für handwerklich begabte Personen geeignet, die sich ihren Traum vom Eigenheim erfüllen möchten. Eine Einbauküche ist vorhanden und das Gäste-WC bietet zusätzlichen Komfort. Der große Garten lädt zum Entspannen und Spielen ein.



Die Immobilie befindet sich in Berlin/Köpenick und ist über eine Zentralheizung mit Flüssiggas beheizt. Der Energieverbrauchskennwert beträgt 180 kWh/(m²*a).



Nutzen Sie die Chance auf ein individuelles Eigenheim und vereinbaren Sie noch heute einen Besichtigungstermin.

Lage

Das Objekt befindet sich in zentraler Lage in Berlin/Köpenick. Die Hauptstadt Deutschlands ist bekannt für ihre vielfältige Kultur, pulsierende Atmosphäre und historischen Sehenswürdigkeiten. Die Immobilie liegt in einer ruhigen Straße, jedoch in unmittelbarer Nähe zu verschiedenen Einkaufsmöglichkeiten, Restaurants, Schulen und öffentlichen Verkehrsmitteln. Die Anbindung an das öffentliche Verkehrsnetz ist hervorragend, so dass die Innenstadt und andere Stadtteile schnell und bequem erreicht werden können. Die Umgebung bietet zudem zahlreiche Grünflächen, Parks und dem naheliegenden Müggelsee, die zu Spaziergängen und Erholung einladen. Insgesamt bietet die Lage eine perfekte Kombination aus urbanem Lebensstil und Erholungsmöglichkeiten.

Sonstiges

Kaufpreis auf Anfrage

Kaufpreis

5

Zimmer

3

Schlafzimmer

128 m²

Wohnfläche

671 m²

Grundstücksfläche

Adresse

12559 Berlin

Preise & Kosten

Kaufpreis
Kaufpreis auf Anfrage
Garagen
2
Käufercourtage
3,57 % inkl. 19% MwSt
Courtage
Die Käuferprovision beträgt 3,57 % inkl. 19 % MwSt., verdient und fällig mit Beurkundung des notariellen Kaufvertrages. Der Immobilienmakler hat einen provisionspflichtigen Maklervertrag mit dem Verkäufer in selber Höhe abgeschlossen.

Angaben zur Immobilie

Objektart
Haus
Grundstücksfläche
671 m²
Gartenfläche
500 m²
Zimmer
5
Schlafzimmer
3
Badezimmer
2
Balkone
1
Stellplätze
2
Wohnfläche
128 m²
Baujahr
1989
Zustand des Objektes
Teil bzw. Vollrenovierungsbedürftig
Verfügbar ab
sofort

Energieausweis

0
>250
Endenergiebedarf
185 kWh/(a·m²)
Gebäudeart
Wohnimmobilie
Energieausweis
Bedarf
Gültig bis
25.02.2018
Endenergiebedarf
185
Ausstelldatum
25.02.2008
Primärenergieträger
Flüssiggas

Ausstattung

Stellplatzart
Garage, Carport, Freiplatz
Bad
Dusche, Wanne, Fenster
Küche
Einbauküche
Boden
Fliesen, Stein, Dielen
Kamin
heizungsart
Zentralheizung
Befeuerung
Flüssiggas
Differenzierung
Standard
Gartennutzung
Gäste-WC
Abstellraum
Unterkellert
Ja

Das Haus ist renovierungs- bzw. sanierungsbedürftig und mit einfacher Ausstattung

Ansprechpartner

Mike Kunkel

Zentrale07231 / 58 50 610
E-MailDiese E-Mail-Adresse ist vor Spambots geschützt! Zur Anzeige muss JavaScript eingeschaltet sein.

Anbieter

SE Immobilien - Management GmbH

E-MailDiese E-Mail-Adresse ist vor Spambots geschützt! Zur Anzeige muss JavaScript eingeschaltet sein.Anzeigen

Bilder

***Sanierungsfall oder Abriss***
***Sanierungsfall oder Abriss***
***Sanierungsfall oder Abriss***
***Sanierungsfall oder Abriss***
***Sanierungsfall oder Abriss***
***Sanierungsfall oder Abriss***
***Sanierungsfall oder Abriss***
***Sanierungsfall oder Abriss***
***Sanierungsfall oder Abriss***
***Sanierungsfall oder Abriss***
***Sanierungsfall oder Abriss***
***Sanierungsfall oder Abriss***
***Sanierungsfall oder Abriss***
***Sanierungsfall oder Abriss***